Réf : 0334
Vendu

Pau (64000) Ideal premier investissement, rapport assuré.

3 Pièce(s)
2 Chambre(s)

Les infos Essentielles

Caractéristiques Valeurs
Code postal 64000
Surface habitable (m²) 56,76 m²
Surface loi Carrez (m²) 56,76 m²
Nombre de chambre(s) 2
Caractéristiques Valeurs
Nombre de pièces 3
Etage 1
Nombre de niveaux 1
Ascenseur NON
Caractéristiques Valeurs
Vue Terrasse / Boulevard
Nb de salle d'eau 1
Cuisine Américaine
Type de cuisine SEMI-EQUIPEE
Caractéristiques Valeurs
Interphone OUI
Visiophone NON
Balcon NON
Loggia NON
Caractéristiques Valeurs
Terrasse OUI
Murs mitoyens 2
Cave NON
Exposition Sud-Est
Caractéristiques Valeurs
Année de construction 1920
Copropriété OUI
Lot n° 9
nombre de lots 19
Caractéristiques Valeurs
Quote Part annuelle des charges 1 656 €
plan de sauvegarde NON
statut du syndic pas de procédure en cours

Exclusivité Aristimmo ! Situé au premier étage d'une petite copropriété sécurisée, investissez ce coquet T3 fonctionnel, jouissant d'une terrasse de plus de 25 m². Facile d'accès et bénéficiant de l'ensemble des transports en communs et autres commerces à proximité immédiate, vous profiterez d'une situation proche de la ceinture Sud de Pau, entre parcs et centre ville. Ses plus : Secteur, commodités à proximité immédiate et son prix ! 

 


Les informations sur les risques auxquels ce bien est exposé sont disponibles sur le site Géorisques

Les infos Financières

Les honoraires d'agence seront intégralement à la charge du vendeur  
Charges 138 €
Taxe foncière annuelle 737 €

Nos outils

Imprimer

Localisation Du bien

  • Commerces et santé
  • Loisirs
  • Ecoles
  • Transports
  • Pratique

Les infos Energetiques

DPE GES
DPE en cours
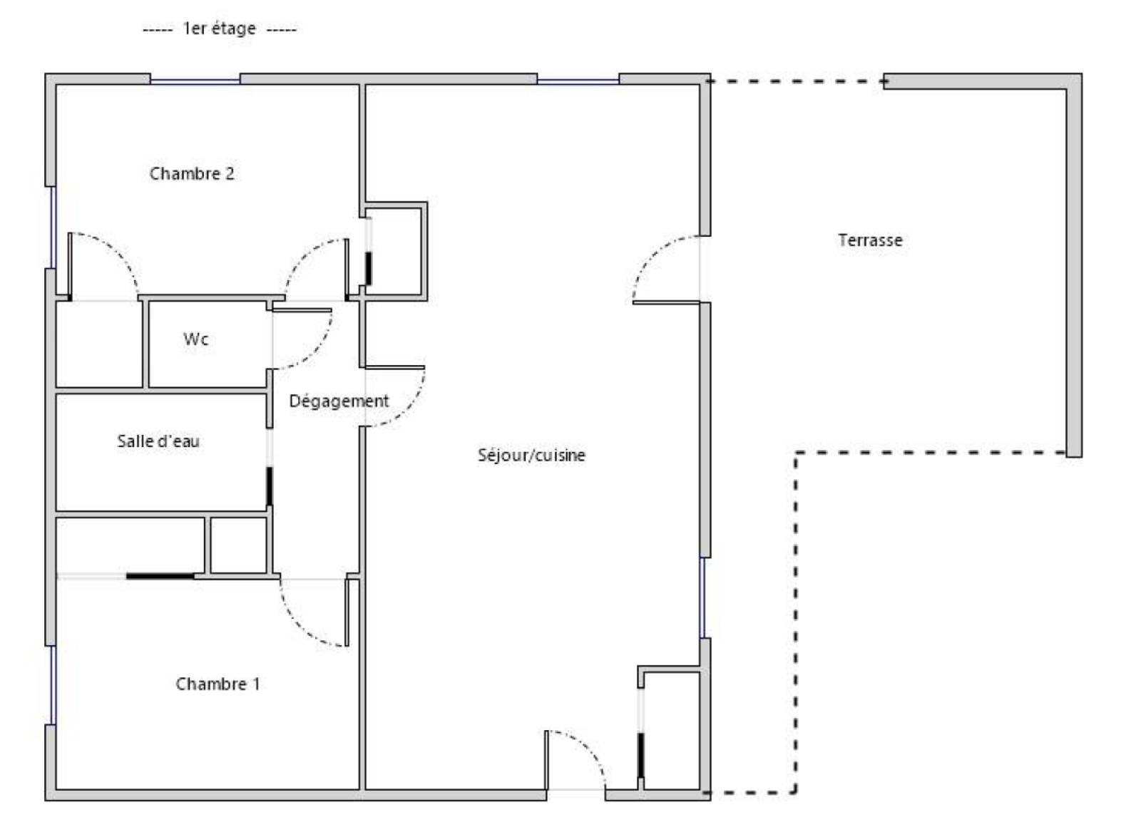
Etage 1
Dégagement 2.44 m²

buanderie 0.54 m²

placard avec possibilité machine à laver et sèche linge

WC 1.05 m²

terrasse 26.54 m²

Intimiste

salle d'eau 2.56 m²

chambre 9.95 m²

avec placard

bureau 8.49 m²

possibilité chambre d'enfant et/ou d'appoint

salon/sejour 31.73 m²

Avec cuisine ouverte aménagée

Intéressé(e) par Ce bien ?
Ces biens peuvent aussi vous intéresser
Nous suivre sur